Call for a quote, group
discounts or to book
020 8313 3999

Chalet la Face Val d’Isere, France

Chalet la Face - 1
Chalet la Face - 2
Chalet la Face - 3
Chalet la Face - 4
Chalet la Face - 5
Chalet la Face - 6
Chalet la Face - 7
Chalet la Face - 8
Chalet la Face - 9
Chalet la Face - 10
Chalet la Face - 11
Chalet la Face - 12
Chalet la Face - 13

Chalet la Face

Val d’Isere, France
  • Flights included
  • Transfers included
, nights

Accommodating six guests, La Face is a spacious chalet with character, ideal for families and smaller groups. With 3 ensuite bedrooms and a fabulous open plan lounge/dining/kitchen area La Face is always in demand.

La Face, named after the famous local Olympic ski run, is part of this operator's 'Cacholet' chalets, built by us in 2000 and recently totally refurbished.

The large lounge/dining area has a log fireplace and French windows which open onto a terrace overlooking the Col over towards Tignes. The three bedrooms all have a bath and shower, basin, wc. and balcony.

La Face’s situation perched at the top of the building means that it gets plenty of light, with all balconies facing South and West.

Guests in La Face can take advantage of our free comprehensive shuttle service to and from the slopes in the morning and afternoon.

As a guest at Chalet La Face, you will also be welcome to make use of our two outdoor hot tubs and shower facilities, situated in the ‘Cacholet’ courtyard.

Room Details

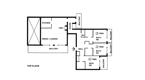
2nd floor: 3 twin rooms, all with bath/shower, basin, w.c. and balcony. (Rooms 1 and 3 have sloping eaves). Lounge/dining area. Log fireplace. Kitchen. Large balconies.

At A Glance

  • Comprehensive new shuttle service
  • Very smart recent refurbishment
  • Beautifully reworked lounge
  • Use of outdoor hot tubs
  • Ski and heated boot storage
  • Free WiFi

Val Tourist Office reg number 73304 000014 JY

Chalet catering has moved on an awfully long way since the early days!

Your Chalet Host will be cooking and serving home-made breakfast, home-baked afternoon tea, canapes and three-course dinners.

Alongside this delicious food you'll be served Champagne and unlimited red, white or rose house wines (apart from with breakfast...).

Breakfast

A hearty, substantial breakfast is vital before a day on the slopes so that's what this operator serves. Our morning feasts have really evolved over the last few years and this operator gets lots of very positive feedback about them.

There's a tempting range of continental options, fresh crusty baguette and porridge as well as a cooked breakfast. There's a different hot option each of the 5 mornings when breakfast is served to you by your host (please note this will be different on our short breaks in January).

No compromise is made on quality - they serve Heinz baked beans and ketchup, HP sauce and real teabags from the UK! Breakfast is served from 08.00 to 09.00.

Afternoon tea

Tuck into tempting treats after your day in the mountains. Help yourself to a freshly baked cake or biscuits which will have been made by your host. There will also be fresh baguette, jams, tea and coffee to enjoy.

Champagne and canapes

Canapes and Champagne or fizz are served at 7:30pm as you unwind and relax for the evening. The house Champagne is Drappier. This operator knows the Drappier family and they are one of the most respected families in Champagne who make their top-quality drinks using environmentally aware methods and only the best ingredients. Drappier is served on the first and last day of your holiday.

On the other evenings they serve a "methode Champenoise" made by their good friend and winemaker Nicolas Perret. Nicolas and family live just down the valley and provide all of their house wines too! Minimum wine miles, maximum quality!

Dinner

Dinner service is informal as they want you to feel at home in your chalet. Your chalet host will prepare and serve all your meals.

They work with local producers and suppliers to create an interesting and varied range of high-quality homemade dishes.

Whilst you will never go hungry in one of this operator's chalets their staff have been trained in sustainability in the kitchen and they endeavour to keep food waste to a minimum.

After your three-course dinner simply leave the table and relax with coffee and chocolates...if you have any room left!

Special diets

If there’s anything you’d rather not eat, whether for moral, sensory or digestive reasons, please let us know before you travel. This operator won’t charge you a penny extra for these special diets.

Children

They can serve dinner early for your youngsters who will likely be worn out after a day in the snow.

Your Chalet Host will prepare homemade, nutritious and fun dinners the kids will love!

Please let us know if you would like early dinner times or have special requests.

Wine

This operator takes their house wines very seriously and believes that they should be good enough to please every palate. They spend a long time each pre-season ensuring that the ones they choose are top-quality, easy-drinking wines. They only serve French wines in order to reduce our wine miles (or kilometres....).

They serve unlimited red, white and rose wine with dinner, from bottles not boxes! Choose your preference from the various different house wines they offer.

If you’re looking for an extra special treat they also have an upgrade Wine Lover’s Package. They have brand new options for winter 2022-23 with packages starting at £60.

Chalet host days off

Your Chalet Host has two days off during the week. Chalet staff will lay out continental breakfast and afternoon tea to help yourself to.

In the evening, it’s a great chance to sample the local cuisine and your Guest Services Manager in resort will be happy to make a restaurant reservation for you.

On departures for the 13th, 20th & 27th December 2022, staff nights off are on Thursday and Sunday. All other departure dates the staff night off is on Tuesday and Friday.

Chalet la Face Val d’Isere Floor Plan 1
Buy 1 Get 1 FREE

Pack Economy

Beginner
Suitable for green pistes Suitable for blue pistes

Ski Line price

£



Perfect for entry level skiers looking for the best price. Refurbished equipment from the Sensation and Evolution categories with a maximum age of 3 years.

Helmets excluded from buy 1 get 1 free promotion.

Buy 1 Get 1 FREE

Pack Evolution

Beginner
Suitable for green pistes Suitable for blue pistes
Dynastar SPEED 263

Ski Line price

£



Entry level skis, with a maximum age of 2 years. Perfect for those discovering the thrills of skiing on green and blue slopes. Manageable and reliable skis even on hard snow, complete with good quality boots for very good comfort.

Helmets excluded from buy 1 get 1 free promotion.

Example: Dynastar SPEED 263

Buy 1 Get 1 FREE

Pack Performance

Intermediate
Suitable for green pistes Suitable for blue pistes Suitable for red pistes Suitable for black pistes
Rossignol FORZA 40° V-CA RENTAL

Ski Line price

£



For all skiers at home on all types of slopes and snow. Comfortable, higher-performance skis that guarantee stability and grip even at full speed. Maximum equipment age is 2 years. Complete with good quality boots for good support.

Helmets excluded from buy 1 get 1 free promotion.

Example: Rossignol FORZA 40° V-CA RENTAL

Buy 1 Get 1 FREE

Pack Excellence

Experienced
Suitable for blue pistes Suitable for red pistes Suitable for black pistes
Salomon ADDIKT

Ski Line price

£



For the most demanding and experienced skiers. The newest equipment for each season, these are the highest quality skis for every terrain, both on-slope and off. Complete with high quality, technical boots for very good support.

Helmets excluded from buy 1 get 1 free promotion.

Example: Salomon ADDIKT

Buy 1 Get 1 FREE

Pack Evolution

Beginner
Suitable for green pistes Suitable for blue pistes
Salomon Wild Card

Ski Line price

£



Entry level, multipurpose snowboards, with a maximum age of 2 years. Perfect for those discovering the thrills of the green and blue slopes. Complete with good quality boots for very good comfort.

Helmets excluded from buy 1 get 1 free promotion.

Example: Salomon Wild Card

Buy 1 Get 1 FREE

Pack Performance

Intermediate
Suitable for green pistes Suitable for blue pistes Suitable for red pistes Suitable for black pistes
Nitro Cinema Rental

Ski Line price

£



For all skiers at home on all types of slopes and snow. Comfortable, higher-performance snowboards that guarantee stability and grip even at full speed. Maximum equipment age is 2 years. Complete with good quality boots for good support.

Helmets excluded from buy 1 get 1 free promotion.

Example: Nitro Cinema Rental

Buy 1 Get 1 FREE

Pack Excellence

Experienced
Suitable for blue pistes Suitable for red pistes Suitable for black pistes
Burton Custom Experience

Ski Line price

£



For the most demanding and experienced snowboarders. The newest equipment for each season, these are the highest quality snowboards for every terrain, both on-slope and off. Complete with high quality, technical boots for very good support.

Helmets excluded from buy 1 get 1 free promotion.

Example: Burton Custom Experience

Buy 1 Get 1 FREE

Pack Junior Champion

Under 12 years
Suitable for green pistes Suitable for blue pistes Suitable for red pistes Suitable for black pistes

Ski Line price

£

Junior skis/snowboards for children 8-11 years at the 3-star or higher, and 12-13 years olds at any level. Maximum equipment age is 3 years. Helmet hire included.

Buy 1 Get 1 FREE

Pack Espoir

Under 12 years
Suitable for green pistes Suitable for blue pistes Suitable for red pistes

Ski Line price

£

Helmet hire included.

Buy 1 Get 1 FREE

Pack Mini Kids

3 - 5 years
Suitable for green pistes Suitable for blue pistes

Ski Line price

£

Junior skis, perfect for kids under 6, to safely carve their first turns. Helmet hire included.

Special Offer - 2026/2027

Free Lift Passes
Saving Up To £400pp

Free lift passes available to all party members. Available on departures for Christmas 2026 and all January 2027.

Offer ends 31st July 2026

Call us today!

Prices & Availability

PP - Price per person based on full occupancy

Filter