Chalet Jora Bansko, Bulgaria
Our flagship chalet, Chalet Jora, is ideally located only 150m from the historic old town and also the main street in Bansko, where you will find various shops, bars, restaurants, night clubs, 10 pin bowling, and an ice-rink. The main ski lift is a short walk away, however, we provide daily shuttle services in our private minibus.
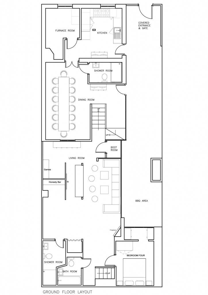
The chalet is an old building which has been carefully renovated to a high standard to offer guests comfort and luxury as well as retaining traditional charming features such as exposed beams, wooden floors and a beautiful log fire. Our spacious lounge with log fire and a modern entertainment system with surround sound is the perfect place to relax with a drink and cake after a great day on the slopes.
- Chalet Jora is available for exclusive use only (minimum 8 people off-peak and 10 people on peak weeks)
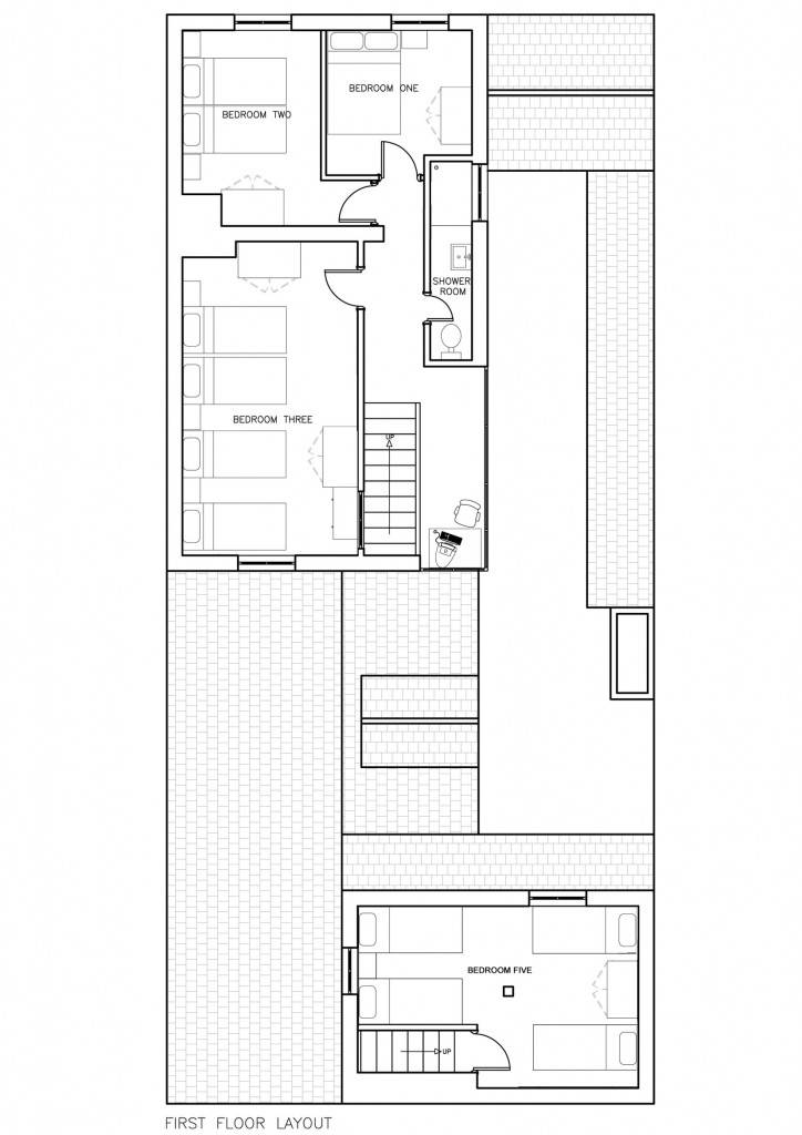
- Sleeps up to 14 guests
- 5 bedrooms - 2 doubles, 1 twin and 2 quad rooms (no bunk beds)
- British hosts on-site every day to take care of all of your needs
- Daily chalet cleaning included
- 4 modern shower rooms
- Comfortable and cosy lounge with log fire and plenty of soft seating
- Flatscreen TV with cable channels, extensive DVD selection, and games
- Connect up your own devices to our surround sound system in the lounge
- Free Wifi internet throughout
- Heated boot room
- Chalet honesty bar in the lounge
- Separate candlelit dining room
- Fully catered with breakfast, afternoon tea and hearty 3-course evening meals on 5 nights
- Unlimited wine and soft drinks to accompany your evening meal
- Children's meals served at times to suit you
- Free use of the spa centre with swimming pool and sauna at a nearby hotel (one visit per person)
- Chalet Jora has been awarded a 5 Star Certificate of Excellence from Trip Advisor
- Chalet Jora's home from home style makes the chalet the perfect choice for larger groups of friends or families wanting to relax together by the fire in the lounge and watch a movie, play games, or enjoy an after-dinner drink from the honesty bar
Please Note
Prices shown are per person based on full occupancy of the property. Usually, this property is only bookable on a full occupancy basis.
This operator is passionate about food and they believe that after a hard day on the slopes, the most satisfying reward is a hearty home-cooked meal, made from fresh, local produce.
Breakfast consists of eggs, porridge, fresh bread, cereals, fruits, yoghurts and conserves with tea, coffee and juice. You can also choose to have a Full English cooked breakfast at a small additional charge.
When you return from the slopes or après-bars in the afternoon, a large freshly baked cake will be waiting for you, along with tea, coffee and hot chocolate for you to help yourselves to.
A delicious 3-course evening meal is served on 5 nights of your stay, washed down with local beer and wine. At their chalets in Bansko, the wine and beer is free flowing during dinner, and in Soldeu at Chalet Hotel Peretol, guests receive one complimentary glass of beer or wine with dinner. All of their chalets have fully stocked bars, and they also have a selection of world wines available for you to purchase.
It is no problem for them to cater for people with special dietary requirements, such as vegetarians, vegans, and gluten-free diets. Please just let us know on the booking form if special meals are required and their chalet staff will be happy to cater for you.
Celebrations
If you are celebrating a special occasion during your stay, please let us know and they will be happy to make the event as memorable as possible. They offer a number of party packages at their chalets, please ask us for details and prices.
- Birthday parties with banners, balloons and a special cake with candles
- Fireworks display in the chalet garden
- Champagne celebrations (included free with Christmas and New Years Eve weeks)
- Surprise parties
- Spa days
- Mountain picnics
- Hen and Stag parties
- Fancy dress skiing and Bar Crawls
Kids Meals
They are happy to cater for children at meal times to suit you. Their children’s meals are well balanced and are prepared with fresh, local, often organic produce.
An example of their children’s menu
Fresh fruit juice, milk or soft drinks of your choice
✦✦✦
Homemade cottage pie, topped with cheese and served with fresh vegetables
✦✦✦
Ice-cream selection
Parents staying with infants are welcome to use the chalet kitchen to warm milk and prepare food, however, they are happy to help with this.
.jpg)
Prices & Availability
PP - Price per person based on full occupancy
All Ski Deals-730x452.jpg)




-730x452.jpg)


-730x452.jpg)
-730x452.jpg)
-730x452.jpg)




-730x452.jpg)
-730x452.jpg)